Kalverstraat niet alleen populair in Monopolyspel maar ook in Roosendaal
De Roosendaalse Kalverstraat (foto: Google Maps)
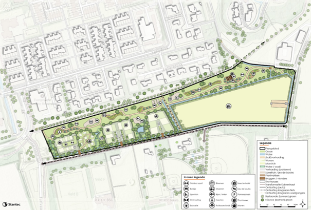
Tijdens een spelletje Monopoly wil iedereen de Kalverstraat hebben. Maar ook de Roosendaalse Kalverstraat is populair. Dat blijkt uit de vele initiatieven rond dit gebied. Donderdagavond keurde de gemeenteraad de Gebiedsvisie Groene Kamers goed. Dat betekent dat gestart kan worden met de ontwikkeling van het gebied tussen de wijk Langdonk en de Kalverstraat.
In een interview met wethouder Arwen van Gestel voorafgaand aan de raadsvergadering noemde hij de gebiedsvisie een prachtig plan. “Langs de Kalverstraat, tussen Langdonk en sportpark Vierhoeven willen we graag in een natuurlijke omgeving heel duurzaam gaan bouwen voor jong en oud”, zei Van Gestel. Of zoals raadslid Marco Schillemans namens de Roosendaalse Lijst het tijdens de vergadering verwoordde: “een buurtschap voor krasse knarren en jonge spring in het velds.”
Duurzaam en sociaal wonen in en rond Kalverstraat
Deze nieuwe woonbuurt biedt straks ruimte aan minstens dertig woningen en tien tiny houses, verdeeld over drie hofjes. Met de woningen ontstaat een duurzame en sociale manier van wonen, waarbij de bewoners zich verbonden voelen met elkaar en met de omgeving. Donderdag bleek dat de voorkeur van de raad uitgaat naar kleinere duurzame woningen op kleinere percelen.

Daarbij roept een grote meerderheid van de raad het college op om bij de ontwikkeling van De Groene Kamers uitsluitend samen te werken met CPO-verenigingen. Aan die oproep geeft wethouder Van Gestel gehoor. “Als college staan we ervoor open om het in CPO uit te geven. Dat betekent dat mensen zelf kunnen inschrijven die verenigd zijn in een Collectief Particulier Opdrachtgeverschap”, legt de wethouder uit. “Zo kunnen we de woningprijzen zo goed mogelijk instapbaar maken voor elke portemonnee.”
Roosendaalse volkstuintjes
In het gebied komt ook ruimte voor een stadspark. Het wordt een groene loper tussen de bestaande bebouwing in de wijk Langdonk en de woonblokken. Volgens de gemeente is hier niet alleen ruimte voor natuur, maar is het ook een aantrekkelijke en ontspannen omgeving voor de huidige en toekomstige bewoners. “Mensen kunnen hier sporten, spelen, wandelen of gewoon genieten van de frisse lucht”, schrijft de gemeente in een persbericht.
Tijdens de raadsvergadering gaf de raad opdracht om te onderzoeken of de volkstuintjes kunnen worden verplaatst dan wel uitgebreid. Volgens de Roosendaalse Lijst kan dit een mooie oplossing zijn voor de wachtlijst. Er zijn veel belangstellenden waar de volkstuinvereniging nu geen ruimte voor heeft. Voor Van Gestel betekent dit dat opnieuw een participatietraject start. De gebiedsvisie Groene Kamers is volgens hem tot stand gekomen na een participatietraject waarin ook de volkstuinvereniging betrokken was. “Zij hebben toen laten weten niet van plan te zijn om hier te vertrekken en met de buurt hebben we dit nog niet besproken”, zegt Van Gestel. “We gaan hierover dus eerst opnieuw in gesprek met omwonenden en met de volkstuinvereniging.” Dat zal nog niet direct gebeuren. Dit onderwerp komt in fase twee van het plan aan bod.
Wat betekent dit voor de Willem Dreesweg?
De gemeenteraad praat al jaren over de Willem Dreesweg. Ook in deze gebiedsvisie laait de discussie over het wel of niet doortrekken van deze weg in de richting van de Zundertseweg weer op. Er ligt nu een opdracht van de gemeenteraad aan het college om te onderzoeken welke alternatieven er zijn voor een betere verbinding tussen Roosendaal-Oost en Roosendaal-ZuidWest. Of met andere woorden: tussen de wijken Kortendijk en Tolberg. Dit onderzoek moet in het tweede kwartaal van 2025 afgerond zijn.
Nu de raad de gebiedsvisie Groene Kamers heeft goedgekeurd volgen de eerste stappen om het gebied te ontwikkelen. Dat begint met een GREX (grondexploitatie) en het organiseren van gesprekken met de verschillende CPO’s. Als er geen bezwaren binnenkomen vinden de eerste gronduitgiften naar verwachting begin 2026 plaats.
Beluister hier het interview met wethouder Arwen van Gestel enkele minuten voordat de raadsvergadering over de besluitvorming begon.