Moerdijk

Moerdijk biedt COA 200 plekken voor asielopvang

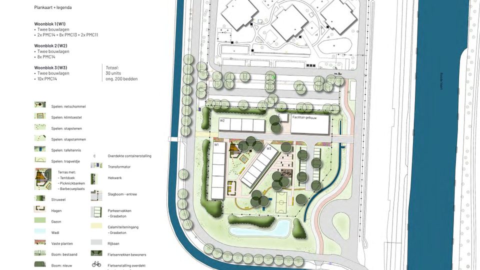
In kleur het ontwerp voor de nieuwe voorziening. De drie blokjes bovenin zijn de bestaande flats.

Herbert Kats Herbert Kats

Het COA gaat tijdelijke faciliteiten bouwen in de gemeente Moerdijk voor de opvang van maximaal 200 statushouders en asielzoekers. Die afspraak is met het Centraal Orgaan Asielopvang gemaakt over de Schansdijk in Zevenbergen. Daar zijn al circa 300 Oekraïnse ontheemden gehuisvest.

Voor de Oekraïners zijn al drie lage flats in gebruik. De gemeente kon snel inspelen op de wensen van het COA. Er lag al een zogeheten omgevingsvergunning en de grond is van de gemeente. Het gaat om zogeheten flexwoningen, waarvoor -anders dan bij gewone bewoning- een vergunning van maximaal 15 jaar geldt.

De gemeenteraad stemde afgelopen zomer al in met nieuwe opvang. Met het COA is inmiddels een bestuursovereenkomst gesloten en zijn aanvullende werkafspraken gemaakt. Zo is er duidelijkheid over wie waarvoor verantwoordelijk is en hoe er gehandeld wordt bij mogelijke overlast.

Woonblokken

Voor de nieuwe groep vluchtelingen ligt een ontwerp klaar dat voorziet in woonblokken met twee woonlagen plus een apart gebouw met voorzieningen. “Letterlijk naast de bestaande flats”, licht gemeentewoordvoerder Connie Polak toe. Per appartement kunnen er vier personen worden gehuisvest. “Maar in de praktijk stop je bij een gezin van drie mensen niet zo maar iemand anders.”

De weg van van het opvangcentrum aan de Schansdijk richting de provinciale N285 is recentelijk verbeterd. De kosten van de nieuwe opvang gaan naar naar het Rijk.

Vervuiling

Toen in de aanloop naar de bouw van een nieuwe voorziening sporen waren ontdekt van vervuiling is nog gekeken of nieuwbouw ten noorden van de al bestaande flats (de zogeheten KaFra-torens) moest komen. Zowel de gemeenteraad als omwonenden en omliggende bedrijven hadden hierover vragen gesteld.

Nader onderzoek wees echter uit dat de vervuiling op de zuidelijke kavel verwijderd kon worden zonder de planning van het COA te verstoren. Toen ook het oppervlak ruim genoeg bleek werd de knoop doorgehakt, zoals de breed levende wens was.