Van horeca en parkeerplaats naar twaalf woningen: ’t Anker gaat op de schop
De voormalige horecalocatie aan de Wouwbaan in Roosendaal (foto: ZuidWest Update).
De voormalige horecalocatie en vrachtwagenparkeerplaats ’t Anker in Roosendaal gaat op de schop. Ontwikkelaar Bergh Vastgoed B.V. gaat het braakliggende terrein omtoveren tot twaalf woonkavels. Daarmee sluiten de plannen aan op de visie van de gemeente Roosendaal.
Om te kunnen voldoen aan de woningopgave, is de gemeente Roosendaal op zoek naar kleinschalige woningbouw in het buitengebied. Deze visie is vastgelegd in de gemeentelijke visie Wonen in & om de Dorpen. Het braakliggende terrein van ’t Anker aan de Wouwbaan in Roosendaal biedt binnen die visie kansen voor een kwaliteitsimpuls, zo stelt de gemeente. Daarom heeft de ontwikkelaar de gemeente benaderd om de voormalige horecalocatie en vrachtwagenparkeerplaats in buurtschap Boeiink om te toveren tot woonkavels.
Participatieavond
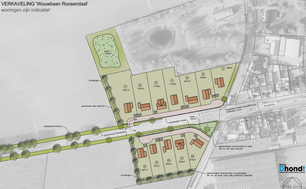
In totaal moeten er straks twaalf vrijstaande woningen gaan verrijzen aan de Wouwbaan. Het gaat daarbij om zeven kavels aan de noordzijde van de Wouwbaan, op de plek van de voormalige vrachtwagenparkeerplaats. Aan de zuidzijde van de weg, waarvan een deel grenst aan de Boeiinksestraat, worden vijf kavels gerealiseerd. In de plannen van de ontwikkelaar is ook al gekeken naar enkele uitgangspunten. Zo moeten de woningen ontsloten worden via een parallelstructuur langs de Wouwbaan. Daarnaast krijgen de kavels aan de westzijde een landelijke inpassing met een groenzone van minimaal tien meter.

Enkele weken geleden is er ook een participatieavond voor de buurt georganiseerd. Daaruit bleek dat omwonenden positief tegenover de plannen staan voor woningbouw in het gebied. Wel zijn er zorgen over de verkeersveiligheid op de Wouwbaan. Zo zou er behoorlijk hard gereden worden en wordt het kruispunt tussen de Wouwbaan en de Boeiinksestraat gezien als onoverzichtelijk. Ook de ontwikkelaar erkent deze zorgen, maar geeft ook aan dat de ontwikkeling van de kavels geen directe betrekking heeft op de bestaande verkeerssituatie. Wel gaat Bergh Vastgoed B.V. in overleg met de gemeente kijken naar mogelijkheden om de verkeerveiligheid te verbeteren.
Vervolgstappen
Om het plan verder vorm te geven, gaat de gemeente Roosendaal nu een omgevingsplanwijziging voorbereiden. Daarna kan de anterieure overeenkomst getekend worden, waardoor de plannen ter inzage komen te liggen en de procedure voor wijziging van start kan gaan. Zodra de handtekeningen gezet zijn, volgt er een gezamenlijk persbericht van zowel de gemeente als de ontwikkelaar.